Marketplace para comercios locales

¡¡ Impulsa tu negocio !!

¡ Súmate !
Mis favoritos: 0
Mi cesta: 0
No hay productos en tu cesta
Mi cesta


Pulsa en la foto para ver detalle

Fancoil Baxi IMEQ Cassette IQK30
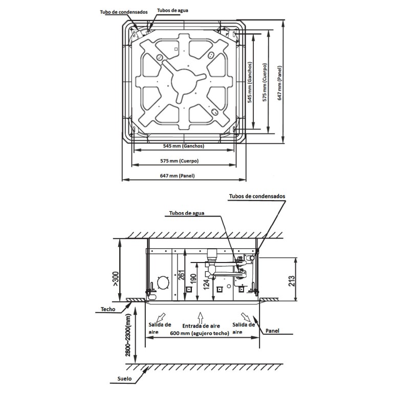
Medidas fancoil IMEQ Cassette IQK30
Funciones mando a distancia IMEQ Cassette IQK30

IMEQ Cassette IQK30 Fancoil de techo

Ref.: CRFA7663851

665,74 € IVA incluido

Vendido por: Abril Soluciones

En stock

Unidad de fancoil compacto para colocar sobre un falso techo, con tecnología DC Inverter, que ofrece un sistema de climatización uniforme de 360º. Incorpora una bomba y bandeja de condensados, aporta aire fresco y salida hacia espacio contiguo. Su funcionamiento es súper silencioso con sistema de dos tubos. Medidas (LxPxH) 575 x 575 x 261mm.

Cantidad
añadir a mis favoritos

¿Cuándo elegir una unidad de fancoil como la IMEQ Cassette IQK30?


Elegiremos este modelo de aire acondicionado fancoil porque se puede usar tanto para calentar como para climatizar espacios amplios como oficinas o locales comerciales. Se alimenta de agua refrigerada o agua caliente procedente de una unidad exterior como un refrigerador, bomba de calor o caldera, con una potencia de 4,01Kw. Está indicado para usar en instalaciones de aerotermia y geotermia, por eso tiene dos tubos, una para la ida y otra para el retorno del agua. Por ambas tuberías pasa agua fría y caliente, en función de si el equipo está trabajando en frío o en calor.

Este fancoil ofrece una climatización uniforme de 360º en la estancia donde se ubica. Nos debemos asegurar de que la pared pueda soportar el peso de la unidad, que son 16,5Kg. Incluye una bomba de condensados que recoge y expulsa el agua que genera el equipo hasta el desagüe, por el tubo de drenaje de 25mm de diámetro. También incluye una bandeja exterior que recoge el agua procedente de la condensación que se produce en la unidad exterior del equipo.

Incluye un mando a distancia desde el que controlaremos todas las funciones del fancoil, nos indicará la hora, la velocidad del ventilador, la temperatura y si está encendido el aparato. Aparte, podremos programar el temporizador, el modo ahorro y bloquear el mando. Normalmente, se utiliza un termostato para regular la temperatura del fancoil, se recomienda usar el modelo TXW-2000, que funciona en modo deshumidificación, refrigeración, calefacción, ventilación y auto. Este fancoil tiene un funcionamiento súper silencioso. El panel decorativo que incorpora de 647 x 647 x 50mm sirve para cubrir el techo una vez colocado el fancoil, con un peso de 2,5Kg.

Para su mantenimiento se puede limpiar con un trapo seco sin usar productos químicos para el equipo. Dispone de un filtro de aire que evita la introducción de polvo u otras partículas dentro del equipo, que debe ser limpiado frecuentemente. En caso de que se acumule demasiado polvo, el filtro deberá ser substituido por uno nuevo.

Principales características de la unidad fancoil IMEQ Cassette IQK30


- Medidas del cuerpo: 575 x 575 x 261mm.
- Alimentación: 220 – 240V / 1Ph / 50Hz.
- Caudal de aire: 535M3/h (V. alta), 429M3/h (V. media) y 322M3/h (V. baja).
- Presión sonora: 39Db(A) (V. alta), 33Db(A) (V. media) y 27Db(A) (V. baja).
- Máxima presión de trabajo: 1,60MPa.
- Peso: 16,5Kg.
- Panel: IQPK40.
- Medidas panel: 647 x 647 x 50mm.
- Peso panel: 2,50Kg.
- Tubería entrada / salida de agua: ¾” Pulg.
- Tubería de drenaje: Ø25mm.

- REGRIGERACIÓN – Temp. Entrada/salida agua 7/12ºC. Temp. Ambiente 27ºC BS, 19ºC BH.
· Capacidad: 2,98Kw (V. alta), 2,53Kw (V. media) y 2,00Kw (V. baja).
· Caudal de agua: 0,53M3/h (V. alta), 0,45M3/h (V. media) y 0,35M3/h (V. baja).
· Pérdida de carga: 1,02m.c.a. (V. alta), 0,71m.c.a. (V. media) y 0,51m.c.a. (V. baja).
· Consumo: 15W (V. alta), 9W (V. media), 5W (V. baja).

- CALEFACCIÓN – Temp. Entrada/salida agua 45/40ºC. Temp. Ambiente 20ºC BS.
· Capacidad: 2,61Kw (V. alta), 2,89Kw (V. media) y 2,24Kw (V. baja).
· Caudal de agua: 0,64M3/h (V. alta), 0,54M3/h (V. media) y 0,42M3/h (V. baja).
· Pérdida de carga: 1,23m.c.a. (V. alta), 0,87m.c.a. (V. media) y 0,54m.c.a. (V. baja).
· Consumo: 15W (V. alta), 9W (V. media), 5W (V. baja).

- CALEFACCIÓN – Temp. Entrada/salida agua 50ºC. Temp. Ambiente 20ºC BS.
· Capacidad: 4,01Kw (V. alta), 3,35Kw (V. media) y 2,61Kw (V. baja).
· Caudal de agua: 0,53M3/h (V. alta), 0,45M3/h (V. media) y 0,35M3/h (V. baja).
· Pérdida de carga: 0,84m.c.a. (V. alta), 0,61m.c.a. (V. media) y 0,39m.c.a. (V. baja).
· Consumo: 14W (V. alta), 9W (V. media), 5W (V. baja).

¿Cómo se suministra la unidad fancoil IMEQ Cassette IQK30?


El producto se suministra con los siguientes accesorios: una unidad fancoil, una plantilla de instalación, 4 tornillos M6, un tubo de salida, un tubo aislante, una abrazadera, 5 cintas de apretado, un mando de contro inalámbrico, un soporte para el control, 2 tornillos, 2 pilas y un manual de usuario e instalación.

Antes de la instalación se recomienda respetar las distancias de instalación indicadas en el manual de instalación.

Valorar este producto

Comparte tu opinión con otros clientes

¿Tienes alguna pregunta?

* El vendedor y clientes que han comprado este producto pueden responder a tu pregunta.

Inicia sesión

Abril Soluciones S.L.

Almacén de fontanería, saneamiento, calefacción, aire acondicionado, ventilación, energías renovables como solar térmica, aerotermia, geotermia, pellet o biomasa, gas, cerámicas, tratamiento de agua, piscinas, electrodomésticos, muebles de baño y diseño de cocinas.

Polígono La Paz, Calle Atenas, 2 - 44195 - Teruel
978 62 11 90 / 656 90 97 74

Somos un almacén de productos de fontaneria y calefacción con más de 50 años de presencia en el sector.

Contamos con propia ruta de reparto semanal a poblaciones limítrofes y con departamento comercial para ayudarle con sus propios presupuestos y/o licitaciones.

También, disponemos de departamento técnico para atender sus consultas y aconsejarles cuales son los productos más indicados para cubrir sus necesidades según la normativa del sector.

Y por último, con nuestro programa de dibujo diseñamos su cocina o cuarto de baño, con propuestas innovadoras que no le dejaran indiferente para sacar máximo partido y comodidad en estas estancias.

saber más

DEVOLUCIONES
Si desea anular el pedido, debe informar en las 24 horas siguientes a las que realizó dicho pedido, ya que pudiera ser que el pedido esté viajando y no sea posible detener el envío.

En el caso de anulación de un pedido dentro de las 24 horas siguientes a su realización y no habiéndolo ni siquiera recibido, se procederá por parte de ABRIL a la devolución del importe del mismo.

Si un pedido ya ha sido enviado, cuando lo reciba, si no queda satisfecho con los productos o servicios adquiridos en ABRIL, los podrá devolver en un plazo no superior a 14 días naturales, contados a partir de la recepción del producto. Las devoluciones deberán ser enviadas junto con el Albarán de Entrega.

En caso de devolución de un producto (siempre que no sea defectuoso) los gastos de transporte (tanto de entrega como de recogida) que correspondan, serán de cargo del comprador.

Se devolverá el valor total del envío, solo cuando sea un error del envío.

La devolución del importe se efectuará de la misma forma en que se pagó la compra.

En caso de devoluciones correspondientes a productos traídos expresamente para el cliente, no se realizará el abono hasta que el proveedor o fabricante del producto devuelto autorice la devolución del mismo.

Las normas respecto a las devoluciones de productos en buen estado, son las siguientes:

No se admitirán devoluciones que no vengan en su embalaje original, en perfectas condiciones y con el producto en perfecto estado. Se considerará el estado en se encuentre el producto devuelto antes de hacer el reembolso.
Para cualquier otra posible incidencia o reclamación recomendamos que se ponga en contacto con nosotros en facturacion@abrilehijos.com o bien a través de nuestro teléfono de Atención al Cliente: 978 62 11 90, durante el horario de atención telefónica (De Lunes a Viernes de 10:00 a 14:00 h y de 16:30 a 19:30 h).
Para reclamaciones por posibles incidencias, como que el producto se entregue deteriorado, averiado, equivocado o por cualquier otra causa susceptible de reclamación, se seguirán los siguientes pasos:

     • Hacer constar cualquier anomalía del producto en el Albarán en el momento de la entrega. Si no ha sido posible constar el hecho en el Albarán, póngase en contacto con nosotros: por correo electrónico (facturacion@abrilehijos.com) o por fax (978 60 28 77) Siempre      dentro de las 24 horas desde la entrega.
     • Tenga en cuenta la siguiente normativa del transportista: El ALBARÁN DE ENTREGA es el justificante del estado de la mercancía. El consignatario estará obligado a hacer constar a la entrega si el envío presenta daños y si la expedición está completa. No se      admitirán reclamaciones si no consta en los albaranes de entrega y si realiza la reclamación después de las 24 horas siguientes a la entrega de la misma. No debe firmar un albarán antes de la recepción de la mercancía. Si el repartidor dijese lo contrario a esto, no      recepcionar o hacer constar este hecho en el albarán.
     • En caso de sustitución de un producto defectuoso: ABRIL se compromete a entregar al cliente otro producto en perfecto estado y a recoger el defectuoso. En el caso de que no se pueda realizar este cambio, se abonará al cliente la totalidad de cualquier cantidad      adelantada.


GARANTIA
En todos los productos siempre será la Garantía que dé el Fabricante del aparato, material, accesorios, etc.

Cabe destacar que los productos ofertados son de primeras marcas y de la mejor calidad. No son productos “B” o de exposición. También destacar que los productos que ABRIL oferta son precintados por los proveedores y fabricantes, salvo indicación expresa, en la que se comunicaría al cliente que el producto ha sido examinado o que se ha sometido a un control rutinario.

La garantía de los productos ofertados por ABRIL es durante un periodo de dos años a partir de la fecha de entrega o desde el día que el servicio técnico realice la puesta en marcha. No se incluyen las deficiencias ocasionadas por negligencias, golpes, uso o manipulaciones indebidas, tensión no idónea, instalación incorrecta no efectuada por el Servicio Técnico autorizado cuando proceda, ni materiales sometidos a desgaste por su uso normal.

En el caso de que el producto sea un aparato el cual presente alguna anomalía en el funcionamiento, el cliente debe dirigirse directamente al Servicio Técnico correspondiente, el cual es responsable de la garantía del mismo.

Para conocer los datos de contacto del Servicio Técnico competente, el cliente puede ponerse en contacto con Atención al Cliente de ABRIL llamando al teléfono 978 62 11 90, para recibir dicha información.

Para accionar la garantía es necesario presentar:

Factura de compra y el albarán de entrega.
La garantía no será válida en caso de factores externos al uso normal del producto, tales como subidas o bajadas de tensión, utilización de accesorios inadecuados o prohibidos por los fabricantes, las caídas, agua, fuego o manejo incorrecto o abusivo por parte del cliente o por terceras personas no autorizadas por los fabricantes, ni materiales sometidos a desgaste por su uso normal.
La garantía dará comienzo en el mismo día que el servicio técnico acuda para la puesta en marcha del aparato y/o según condiciones del fabricante.

Cerrar